صناعة سعودية بمواصفات عالمية

نبتكر للميدان
لنبني المستقبل

شركة سعودية رائدة في الحلول الصناعية واللوجستية المبتكرة، نصمم ونصنع منظومات الإعاشة الميدانية الذكية التي تتحدى أصعب الظروف البيئية

+10
سنوات خبرة
+150
مشروع منفّذ
+50
عميل مؤسسي
9
منتج أساسي
اكتشف المزيد

فلسفة هندسية فريدة

نجمع بين صلابة المنشآت الدائمة ومرونة الوحدات المتنقلة، مع التزام تام بتوطين التقنيات الميدانية

01

هياكل فولاذية مجلفنة

مقاومة للتآكل والصدأ مع عزل حراري فائق مصمم لتحمل درجات حرارة تصل إلى 55 درجة مئوية

مقاومة البيئة القاسية
02

الانتشار السريع

أنظمة هيدروليكية وذكية تسمح بجاهزية التشغيل الكامل في أقل من ساعتين من لحظة الوصول

أقل من ساعتين
03

المطابقة للمعايير

التزام تام بمعايير السلامة الغذائية (HACCP) والاشتراطات العسكرية (MIL-STD) الدولية

HACCP + MIL-STD

حلول متكاملة لكل ميدان

SMK1000
الأكثر طلباً
SMK-1000

المطبخ المتنقل الذكي

مطبخ ميداني متكامل داخل حاوية شحن بنظام High Cube، قادر على خدمة 1,000 شخص يومياً

1000 شخص/يوم رفع هيدروليكي Rational
عرض التفاصيل
SMT100
متعدد الاستخدامات
SMT-100

خيمة الخدمة الذكية

مساحة تشغيلية 200م² بنسيج PVC كوري مقاوم للحريق، تستوعب حتى 400 شخص

100-400 شخص PVC كوري 20 طن تبريد
عرض التفاصيل
SMV200
قابل للتوسعة
SMV-200

حاوية الخدمات المتوسعة

حاوية هيدروليكية بنظام التوسع الثلاثي، توفر مساحة تشغيلية تصل لـ 85م²

100-200 فرد توسع هيدروليكي 15+ سنة عمر
عرض التفاصيل
55°C
تحمّل حراري
<2h
جاهزية التشغيل
100%
توطين محلي
15+
سنة عمر افتراضي

جاهزون لدعم مشروعك القادم

سواء كنت تبحث عن حل عسكري تكتيكي أو منظومة إعاشة لمشاريعك المدنية، فريقنا الهندسي جاهز لتقديم حلول مخصصة

عقد من الريادة في الحلول الميدانية

شركة زويا للحلول الصناعية واللوجستية هي شركة سعودية رائدة، انطلقت من قلب المملكة لتقديم حلول ميدانية وهندسية متكاملة تتحدى أقسى الظروف البيئية.

نحن لا نصنع مجرد وحدات متنقلة، بل نبني بيئات تشغيلية ذكية تضمن الكفاءة التشغيلية وسلاسة سلاسل الإمداد، بفكر يدمج بين صلابة المنشآت الدائمة ومرونة الوحدات المتنقلة.

🏗️

توطين كامل

تقفيل محلي بالكامل يدعم رؤية 2030

🌡️

تحمّل شاق

عزل حراري وميكانيكي لأجواء المملكة

اكتفاء ذاتي

أنظمة إدارة طاقة ومياه مدمجة

🛡️

معايير عالمية

HACCP + MIL-STD معتمدة

2016

ندعم مستهدفات رؤية المملكة

نلتزم في زويا بدعم رؤية المملكة 2030 من خلال توطين التقنيات الميدانية وبناء شراكات احترافية طويلة الأمد

100%
محتوى محلي
+50
شريك استراتيجي
+200
وظيفة مباشرة
+10
سنوات ريادة

تسعة منتجات لتسعة تحديات

من المطابخ الميدانية الذكية إلى وحدات الطاقة الهجينة، نوفر حلولاً متكاملة لكل سيناريو تشغيلي

SMK-1000 SMK-1000 SMK-1000
رائد المبيعات
SMK-1000

المطبخ المتنقل الذكي

مطبخ حاوية متكامل لـ 1000 فرد يومياً بنظام رفع هيدروليكي ذاتي

عرض التفاصيل
SMT-100 SMT-100 SMT-100
SMT-100

خيمة الخدمة الذكية

خيمة ميدانية بنسيج PVC كوري تتسع 100-400 شخص

عرض التفاصيل
SMV-200 SMV-200 SMV-200
SMV-200

حاوية الخدمات المتوسعة

حاوية بنظام التوسع الهيدروليكي الثلاثي لـ 200 فرد

عرض التفاصيل

المنتجات الإضافية

MK-20 Luxe — مطبخ سياحي مدمج

تصميم عصري قابل للتخصيص لمشاريع الـ Glamping الفاخرة

MK-300 Tactical — مطبخ عسكري

متوافق مع المواصفات العسكرية MIL-STD بطلاء IR

CS-40 Arctic — تخزين مبرّد

نظام تبريد مزدوج لضمان سلسلة التبريد

BP-50 Bakery — مخبز ميداني

إنتاج 2000 رغيف خبز طازج يومياً

Zoya-Med — عيادة ميدانية

وحدة طبية متكاملة للمناطق النائية والتعدين

Zoya-Power — وحدة طاقة هجينة

مولدات ديزل + ألواح شمسية للتشغيل المستقل

نخدم أصعب القطاعات

⚔️

القطاع العسكري

مطابخ ومنظومات إعاشة تتوافق مع MIL-STD للقوات المسلحة والأمن

⛏️

التعدين والطاقة

حلول ميدانية للمواقع النائية ومشاريع البنية التحتية

🏗️

المقاولات الكبرى

إعاشة العمالة في المشاريع العملاقة والمدن الجديدة

🎪

الفعاليات والمهرجانات

وحدات خدمة سريعة الانتشار للأحداث الكبرى

🕌

الحج والعمرة

منظومات إعاشة ضخمة لخدمة ضيوف الرحمن

🏕️

السياحة والترفيه

حلول Glamping فاخرة ومطابخ سياحية مدمجة

🚑

الإغاثة والطوارئ

وحدات استجابة سريعة للكوارث والأزمات

🏢

القطاع الحكومي

حلول مخصصة للجهات الحكومية والبلديات

نحن هنا لخدمتك

📍
المقر الرئيسي
المملكة العربية السعودية
📧
البريد الإلكتروني
info@zoya.com.sa
📞
الهاتف
+966 55 756 7978
🕐
ساعات العمل
الأحد - الخميس: 8:00 ص - 5:00 م

دعم فني 24/7

فريقنا الفني متاح على مدار الساعة لضمان عدم توقف العمليات الميدانية

طلب عرض سعر

العودة للمنتجات
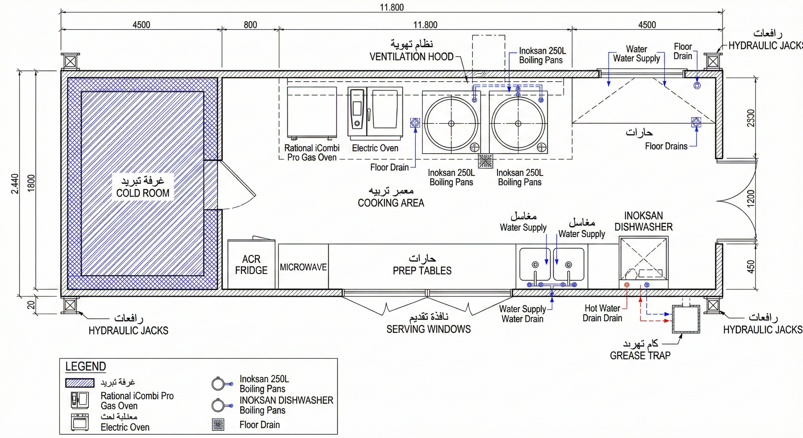
SMK-1000

المطبخ المتنقل الذكي

الحل الهندسي الأكثر تطوراً للتغذية الجماعية في المواقع النائية. مطبخ صناعي احترافي داخل حاوية شحن قياسية بنظام High Cube، قادر على خدمة 1,000 شخص يومياً بكفاءة متناهية.

SMK-1000 المطبخ المتنقل الذكي
المواصفات الهيكلية
نوع الهيكلحاوية شحن 40 قدم High Cube
الطول الكلي11.80 متر
العرض2.44 متر
الارتفاع2.90 متر
العزلSandwich Panel 100mm
الأرضيةS/S Checkered Plate مانعة للانزلاق
نظام الرفع الهيدروليكي
عدد الركائز4 ركائز هيدروليكية
قدرة الرفع20 طن إجمالي
التوازنSelf-Leveling تلقائي
الانتشارRapid Deployment
السعة1,000 شخص / يوم
وقت الجاهزيةأقل من ساعتين

Rational iCombi Pro

فرن ذكي بنظام مزدوج (غاز وكهرباء)، موديل 20-2/1 بسعة 20 صينية كبيرة مع نظام تنظيف ذاتي

قدور Inoksan 250L

قدرين بسعة 250 لتر من ستانلس ستيل AISI 304 بنظام تسخين مزدوج الجدران

غرفة التبريد HICE

مساحة تخزين 2.5 متر بوحدات Copeland/Bitzer وجدران مانعة للبكتيريا

غسالة Inoksan Hood-Type

دورة غسيل 60-90 ثانية مع تعقيم حراري بـ 85°م

نوافذ الخدمة المزدوجة

نافذتان هيدروليكيتان مع رفوف تقديم وستائر هوائية وإضاءة LED

منطقة التحضير

طاولات تقطيع مع رفوف ومغاسل مزدوجة ونظام تعقيم UV

نظام التهوية

مدخنة Hood بطول 5 أمتار مع شفاطات ونظام فلاتر دهون قابلة للفك والغسيل

نظام التكييف

وحدتي تكييف بقوة تبريد عالية تحافظ على 22°م داخل المطبخ

نظام الطاقة

لوحة توزيع IP65 مع ATS ونظام إضاءة LED ومقابس صناعية محمية

نظام المياه

خزان احتياطي ومضخات ضغط وسخان مركزي ووصلات Quick Coupling

نظام الصرف

قنوات Slot Drains ومصيدة دهون Grease Trap من الستانلس ستيل

الدعم الفني

فريق فني متخصص 24/7 مع صيانة وقائية وفتحات صيانة جانبية

العودة للمنتجات
SMT-100

خيمة الخدمة الذكية

وحدة المطعم المتنقلة بمساحة 200 متر مربع، مصممة بتقنية النفق المطور مع نسيج PVC كوري مقاوم للحريق والأشعة فوق البنفسجية، تستوعب من 100 إلى 400 شخص.

SMT-100 خيمة الخدمة الذكية
المواصفات العامة
الأبعاد10م × 20م × 3.5م ارتفاع
الشكلنفق ذو سقف مسطح
السعة100 - 400 شخص
المساحة التشغيلية200 متر مربع
وقت التركيب8 ساعات
المواد والأنظمة
القماشPVC كوري 1100 GSM
الهيكلأنابيب فولاذية مجلفنة
التكييفوحدتان × 10 طن (20 طن إجمالي)
الأثاث25 طاولة + 100 كرسي قابلة للطي
النقلحاوية شحن 40 قدم HC واحدة

مقاوم للحريق 100%

نسيج PVC كوري بكثافة 1100 GSM مقاوم للحريق بالكامل ومعالج ضد الأشعة فوق البنفسجية

عزل تام للأمطار

تصميم السقف بزوايا حادة يضمن انسيابية الأمطار وتوزيع الأحمال الهوائية

تبريد قوي حتى 50°م

نظام تكييف مركزي HVAC يضمن 22° مئوية في الداخل حتى مع حرارة خارجية 50°

منظومة سلامة متكاملة

6 طفايات حريق + مخرج طوارئ خلفي + نظام تأريض كهربائي وقواطع أوتوماتيكية

أثاث عالي الجودة

طاولات بولي إثيلين مقاومة للخدش وكراسي فولاذية بزوايا مستديرة

نقل وانتشار سريع

جميع المكونات تُضغط في حاوية واحدة للنقل البحري والبري

العودة للمنتجات
SMV-200

حاوية الخدمات المتوسعة

حاوية ISO معدّلة بنظام التوسع الهيدروليكي المزدوج، تتحول من حاوية شحن قياسية إلى صالة واسعة بعرض 7.5 متر ومساحة 85 متر مربع تسع حتى 200 فرد.

SMV-200 حاوية الخدمات المتوسعة
المواصفات الفنية
نوع الحاويةISO Standard Modified - High Cube
نظام الربطDual Expansion Hydraulic System
العزل الحراريPolyurethane Foam - R20 Rating
مقاومة الرياححتى 120 كم/ساعة
العمر الافتراضي15 سنة (مع الصيانة الدورية)
التجهيزات الداخلية
السعة100 - 200 فرد
الأثاث50 طاولة + 200 كرسي قابل للطي
الإضاءة30 كشاف LED
التكييف20 طن تبريد
وحدات النقل2 حاوية 40 قدم HC

توسع ثلاثي الأجنحة

نظام هيدروليكي يفتح 3 أجنحة جانبية محولاً الحاوية لصالة بعرض 7.5 متر

فتح وإغلاق يدوي

تصميم ميكانيكي سلس لا يتطلب مجهوداً أو موارد خاصة

نظام كهرباء متكامل

صندوق كهربائي خارجي مع كابلات مضادة للحرارة والماء

+15 سنة عمر تشغيلي

بناء متين بعمر افتراضي يتجاوز 15 سنة مع الصيانة الدورية

صفر% انبعاثات داخلية

تصميم بيئي نظيف بدون انبعاثات داخلية ضارة

100% قابلية للنقل

تُطوى بالكامل وتُشحن كحاوية شحن قياسية براً وبحراً وجواً